Residência BB 214 / Estúdio de Arquitetura e Design Minimalista

Uma Composição de Quietude e Luz

Residência BB 214 / Minimalist Architecture & Design Studio - Fotografia de Exterior

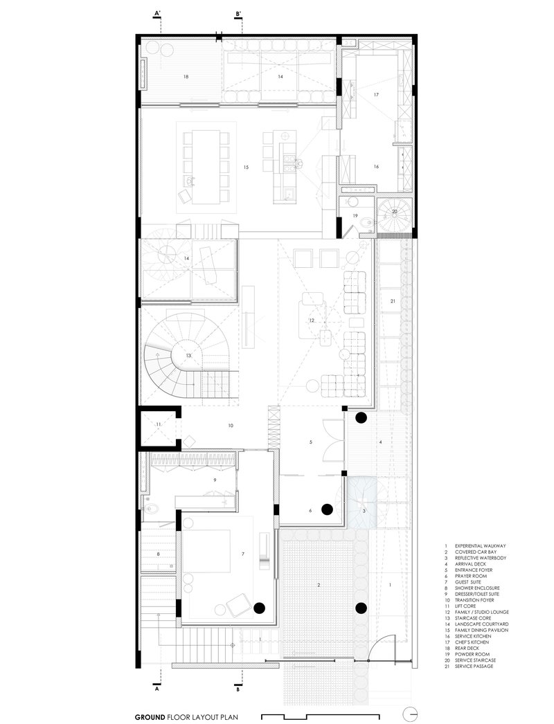
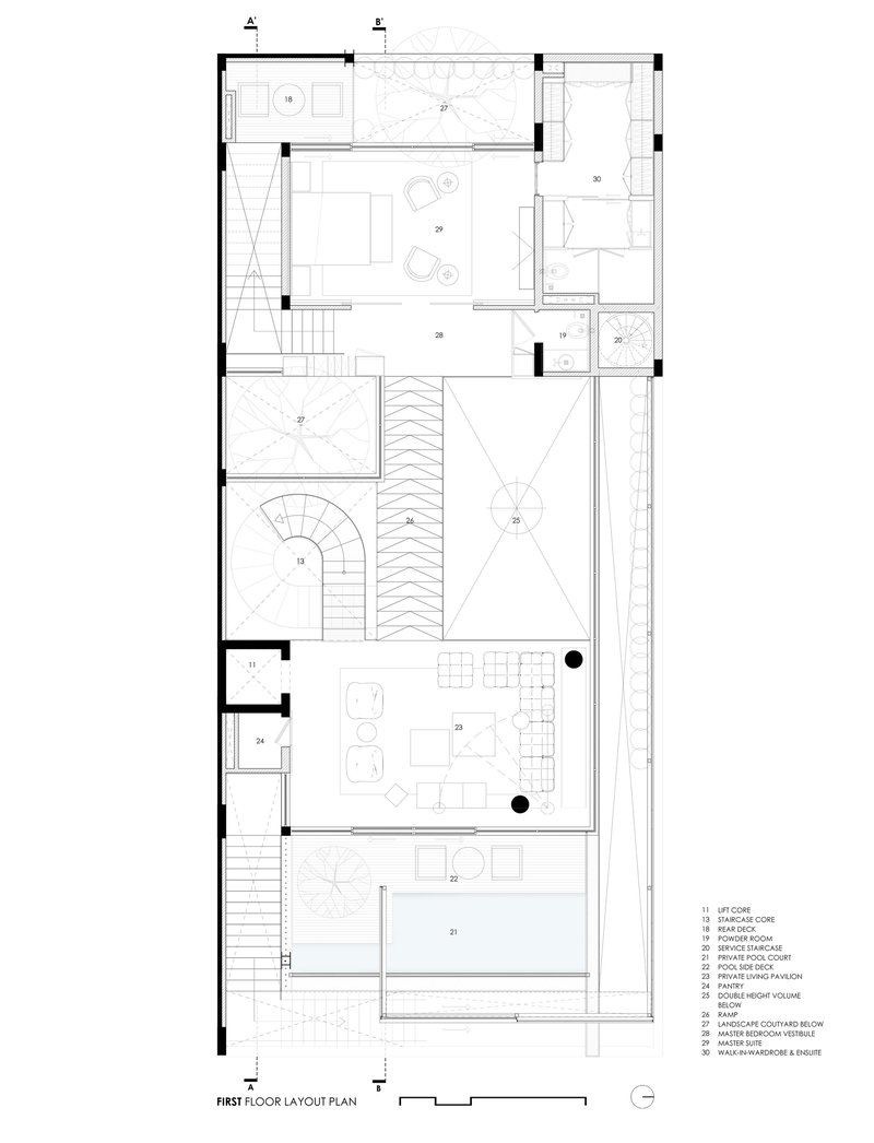
A Residência BB 214 é uma obra-prima da arquitetura minimalista, onde cada elemento é cuidadosamente pensado para criar uma atmosfera de serenidade e harmonia. Ao se aproximar desta residência, o visitante é imediatamente envolvido por uma sensação de tranquilidade que emana de suas linhas puras e formas simples. A estrutura se revela como uma extensão natural do ambiente que a circunda, com grandes janelas que capturam a luz do dia e a filtram suavemente para o interior, criando um jogo de sombras e luz que dança ao longo das paredes.

Residência BB 214 / Minimalist Architecture & Design Studio - Imagem 6 de 31
Residência BB 214 / Minimalist Architecture & Design Studio - Imagem 6 de 31

A escolha dos materiais é deliberada e sutil; cada textura e acabamento foram selecionados para promover um diálogo entre o espaço e seus ocupantes. O concreto aparente, a madeira natural e o vidro, em um balé harmonioso, se unem para formar um espaço que não apenas abriga, mas inspira. O ambiente interno é um convite ao contemplar, com áreas abertas que fluem umas para as outras, permitindo uma circulação livre e intuitiva. Os espaços comuns, como a sala de estar e a cozinha, são projetados para serem acolhedores, promovendo a interação e a convivência, enquanto os recantos mais íntimos oferecem refúgios de calma e introspecção.

Residência BB 214 / Minimalist Architecture & Design Studio - Fotografia de Interiores, Escada
Residência BB 214 / Minimalist Architecture & Design Studio - Fotografia de Interiores, Escada

Neste projeto, a ornamentação excessiva foi deixada de lado, permitindo que a pureza do design e a funcionalidade prevaleçam. A arquitetura se retira gentilmente, criando um pano de fundo que apoia e enaltece a vida cotidiana dos moradores. Cada detalhe, desde a escolha das cores até a disposição dos móveis, foi pensado para criar um equilíbrio perfeito entre estética e praticidade. Assim, a Residência BB 214 não é apenas um espaço físico, mas uma experiência sensorial que ressoa com a essência da vida, onde cada momento ganha um significado especial sob a luz do dia.

Residência BB 214 / Minimalist Architecture & Design Studio - Fotografia de Interiores, Sala de Estar, Iluminação, Cadeira, Vidro
Residência BB 214 / Minimalist Architecture & Design Studio - Fotografia de Interiores, Sala de Estar, Iluminação, Cadeira, Vidro

Agora você receberá atualizações das contas que você segue! Siga seus autores, escritórios, usuários favoritos e personalize seu stream.

Residência BB 214 / Minimalist Architecture & Design Studio - Fotografia de Interiores, Sala de Estar, Vidro, Cadeira, Balcão
Residência BB 214 / Minimalist Architecture & Design Studio - Fotografia de Interiores, Sala de Estar, Vidro, Cadeira, Balcão

Inscreva-se

Receba nosso boletim mensal sobre arquitetura e materialidade.